アスペルン・ゼシュタット

ウィーン

オーストリア

参加希望者

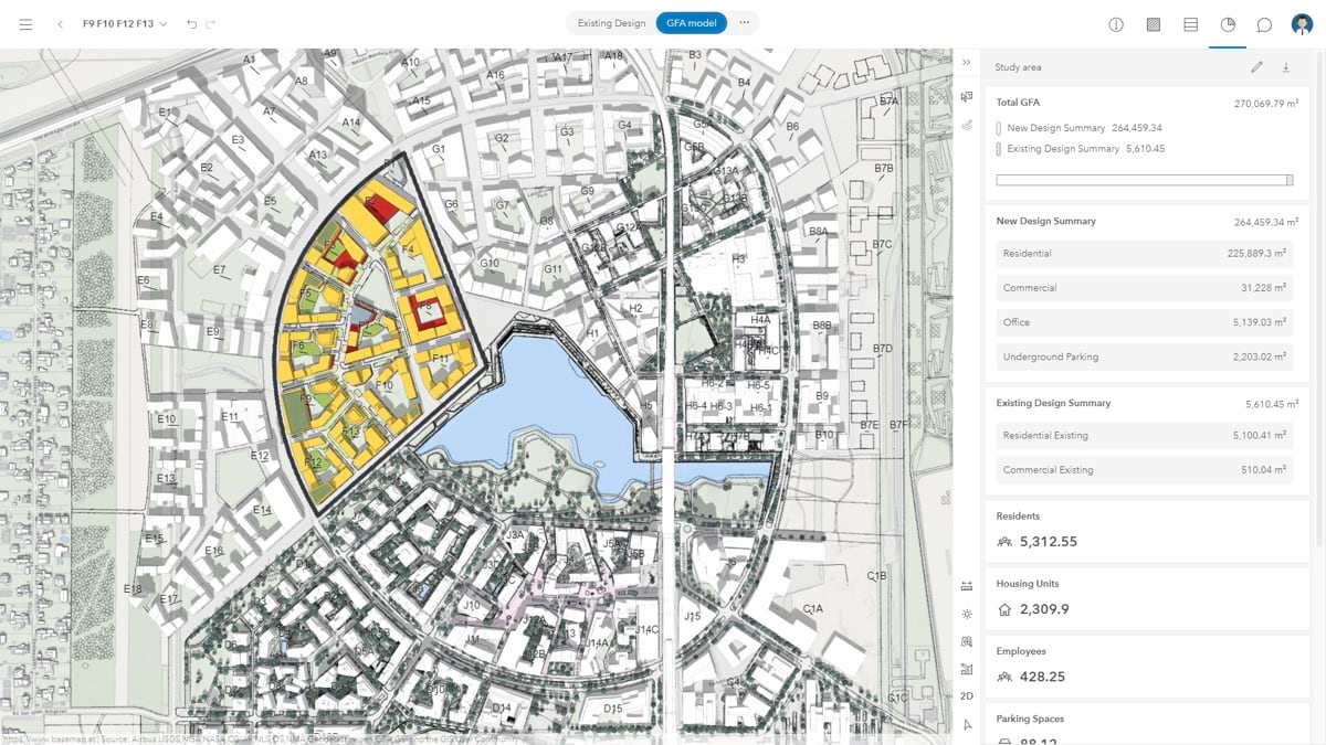
アスペルン・ゼーシュタットは、ウィーン北東部(第22区ドナウシュタット)に位置するヨーロッパ最大級の新都市開発地区です。プロジェクトは約240ヘクタールに及び、2030年代までに25,000人以上の居住者、20,000人以上の雇用と研究場所を収容するよう設計されています。旧飛行場跡地に着手したマスタープランは2007年に採択され、「都市の中の都市ウィーン」を実現するため、段階的に開発が進められています。

ウィーンの北東部、CENTROPE地域に位置しています。革新的なこの地区は、生活、仕事、文化、レクリエーションがシームレスに共存する、活気ある複合コミュニティへと進化しています。アスペルン・ゼシュタットは、地下鉄U2線に直結し、公共交通機関へのアクセスも良好な戦略的立地にあり、活気ある住宅地として、また国際的なビジネス拠点として機能しています

未来都市基準への適合

環境と自然

2040年までに温室効果ガスニュートラルな経済を目指す「aspern klimafit」基準に基づき、アスペルン・ゼーシュタットでは持続可能性を重視しています。このプロジェクトでは、高効率の建物、再生可能エネルギー、湖の掘削材を現地でリサイクルするなどの循環型経済を重視し、トラックによる28万回の移動と6000トンの排出を削減しています。面積の50%近くを緑地が占め、「スポンジ・シティ」の原則を応用して雨水を管理し、暑さを軽減し、居住性を高めています。

スマートシティ

アスペルン・ゼーシュタットでは、最先端のデジタルツールを計画・管理に活用しています。プランナーは、GIS技術(ArcGIS Urban)で構築された地理空間デジタルツインを使用して、プロジェクトを視覚化し、データを統合し、エネルギー効率と気候目標に関する情報に基づいた意思決定を行います。このデジタルツインは、すべての利害関係者の共同プラットフォームとして機能し、持続可能性目標のリアルタイム更新と長期モニタリングを可能にし、従来のプロジェクト管理をダイナミックでデータ駆動型のプロセスに変えます。

人間中心

この地区は、人々の幸福を最優先し、強いコミュニティ意識を育むよう綿密に設計されています。主な目標は、40対40対20の交通モーダルスプリット:公共交通機関が40%、徒歩と自転車が40%、自家用車はわずか20%。

地区の約半分はオープンスペース。現在でも、19.5ヘクタールが湖と最初の5つの公園専用となっています。このように計画されたオープンスペースは、都会でありながら緑に囲まれた、バランスの取れた生活を実現しています。湖はゼーシュタットの中心であり、都市生活と自然のユニークな相互作用を目に見えるものにしています。

興味深いリンク

公式参加都市として申請し、承認された都市や開発地域は、外部ウェブサイトへのリンクやビデオ機能を利用できます: お申し込みはこちら