COMPLEJO BANDRA KURLA

MUMBAI, MAHARASHTRA

India

Participante propuesto

Bandra Kurla Complex (BKC) es un distrito comercial y de negocios planificado en Mumbai. Se desarrolló para aliviar la sobrecarga de las zonas comerciales del sur de Mumbai creando un nuevo centro con infraestructuras avanzadas. Desde su creación por la Autoridad para el Desarrollo de la Región Metropolitana de Bombay (MMRDA) en 1977, BKC ha pasado de ser un terreno pantanoso y de baja altitud a convertirse en un sofisticado ecosistema empresarial que da apoyo a más de 400.000 profesionales de los sectores financiero, tecnológico y cultural.

Bandra Kurla Complex (BKC) es un distrito central de negocios de primera categoría situado en la zona de Bandra Este de Bombay, la capital financiera de la India. Abarca unas 370 hectáreas y se extiende junto al río Mithi y el arroyo Mahim. Se caracteriza por sus amplias carreteras, su arquitectura contemporánea y sus completos servicios públicos, que incluyen agua, electricidad, gas y telecomunicaciones. El complejo alberga los principales bancos indios y multinacionales, instituciones financieras como la Bolsa Nacional y la SEBI, empresas tecnológicas como Twitter India y Amazon, así como instituciones culturales y educativas.

Cumplimiento de los criterios de Ciudades Futuras

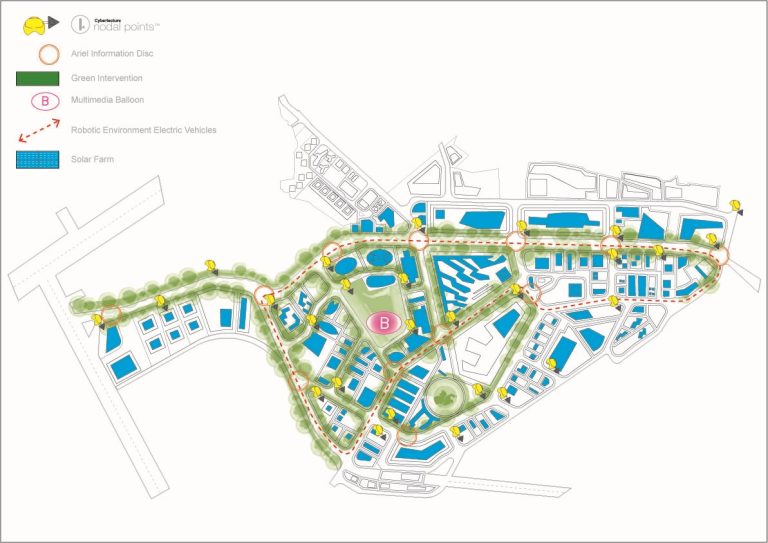
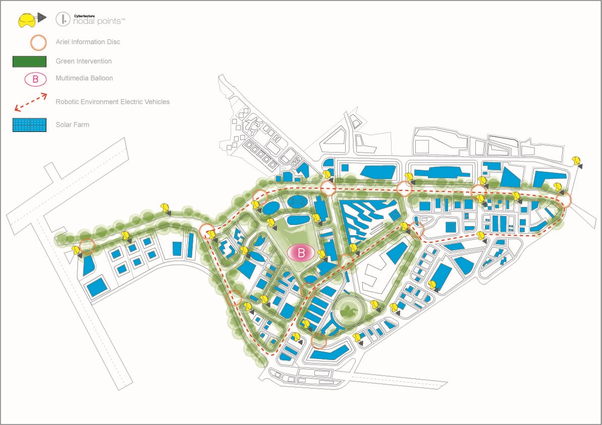
Medio ambiente y naturaleza

La sostenibilidad es un valor fundamental en el diseño y el crecimiento de BKC. El proyecto se centra en la construcción ecológica, los edificios energéticamente eficientes y el mantenimiento de extensos parques y jardines verdes para mejorar la calidad del aire y el confort urbano. Las iniciativas para reducir el impacto medioambiental incluyen la mejora del drenaje, el control de la contaminación en las masas de agua adyacentes y un trazado urbano favorable a los peatones para reducir las emisiones de los vehículos.

Ciudad inteligente

BKC integra tecnologías de vanguardia para apoyar su papel como centro financiero y empresarial. Las iniciativas de ciudad inteligente hacen hincapié en la conectividad a Internet de alta velocidad, unos enlaces de transporte público eficientes y una infraestructura digital que facilite unas operaciones comerciales fluidas. Esto incluye el uso de una gestión inteligente del tráfico y de dispositivos de seguridad mejorados.

Human-Centric

La planificación de BKC da prioridad a la calidad de vida de las personas incorporando parques recreativos, centros culturales y zonas peatonales que fomentan la interacción y el bienestar de la comunidad. Los servicios públicos están cuidadosamente integrados para mejorar la accesibilidad y la habitabilidad, apoyando un estilo de vida urbano equilibrado en medio de un bullicioso distrito financiero.

Enlaces de interés

Enlaces a páginas web externas y vídeos disponibles para las ciudades y urbanizaciones que lo soliciten y sean aceptadas como Participantes Oficiales: pulse aquí para solicitarlo